En Venta
NUEVO DESARROLLO ARQUIMIA 1 ZONA ESCUELA SANTA TERESITA
Código: 175381

Francisco Soler 1025, E3102 Paraná, Entre Ríos, Argentina, Parana, Entre Rios, Argentina.

Consultar Precio
Emprendimiento
Compartir esta Propiedad

Descripción de la Propiedad

Se venden departamentos en pozo, ubicado en calle SOLER 1025, entre Saraví y Vicente López y Planes.
El edificio ARQUIMIA 1, tendrá una ubicación estratégica, 2 cuadras de la terminal de Ómnibus, y cerquita de todo con facil acceso al centro
como también al sur y al norte de la ciudad.
Ideal para inversores que quieran disfrutar de una rentabilidad competitiva o jóvenes para primera inversión o vivienda.
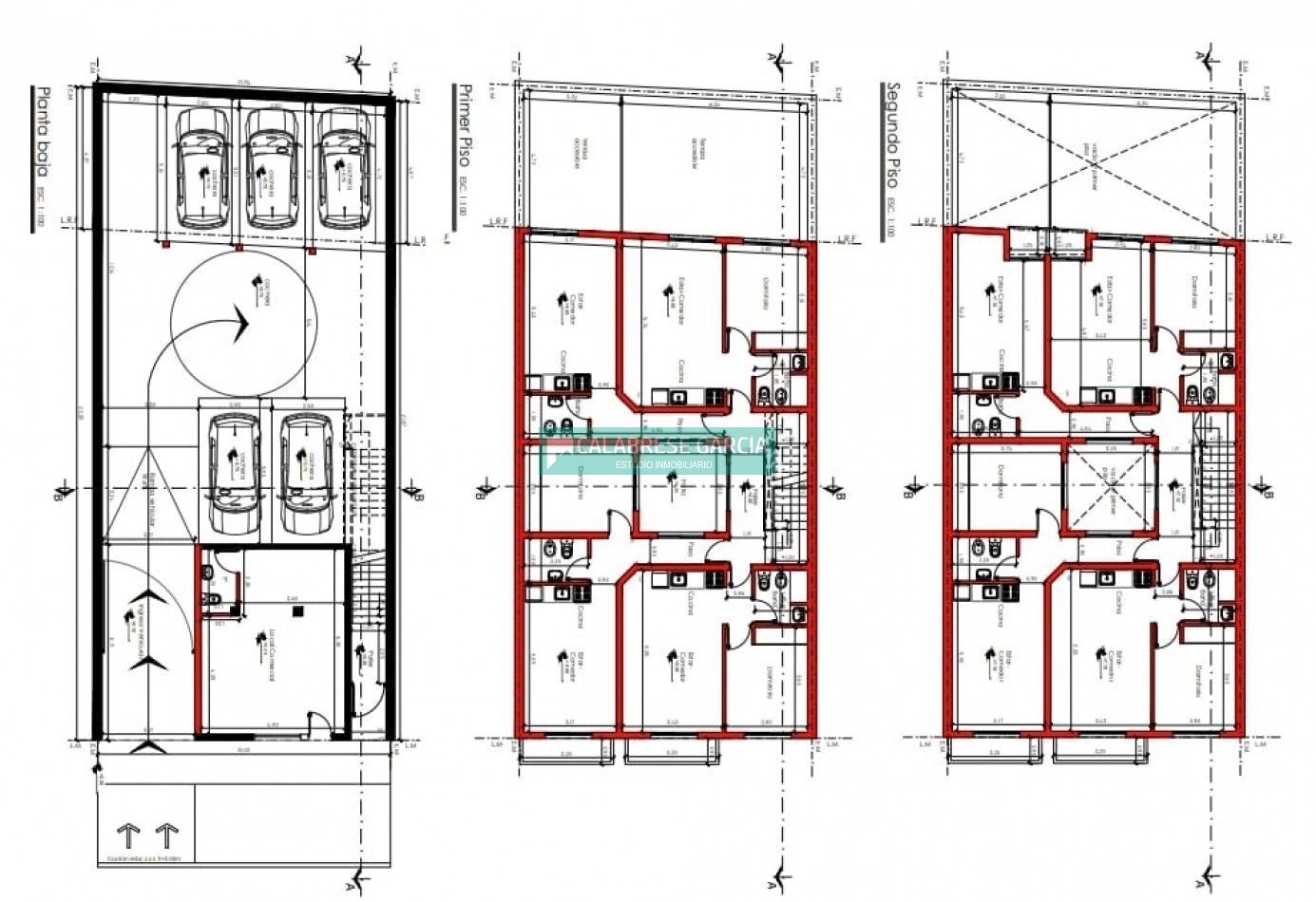
El emprendimiento esta pensado en planta baja y 3 pisos.
La obra se prevé la entrega en Julio 2027.
El ARQUIMIA 2, posee:
En la planta baja:
-Local comercial al frente de 35 m2 cubiertos
- 7 cocheras cerradas.
En el 1° piso posee tres departamentos de un dormitorio y un monoambiente.
- 1 Departamento Frente Norte con terraza de 42 m2 cubiertos.
- 1 Departamento al contra Frente de un dormitorio con terraza de 39 m2 cubiertos.
- Monoambiente al frente con terraza 29 m2 cubiertos
En el 2° Piso, posee tres departamentos de un dormitorio y un monoambiente.
- 1 Departamento Frente Norte con balcón de 39 m2 cubiertos.
- 1 Departamento al Frente Sur de un dormitorio con balcón de 42 m2 cubiertos.
- Monoambiente al frente con balcon 28 m2 cubiertos
En el 3° Piso, posee tres departamentos de un dormitorio y un monoambiente.
- 1 Departamento Frente Norte con balcón de 38 m2 cubiertos.
- 1 Departamento al Frente Sur de un dormitorio con balcón de 42 m2 cubiertos.
- Monoambiente al frente con balcon 28 m2 cubiertos

Terminaciones:
Los departamentos poseen pisos cerámicos de primera calidad, aberturas linea Módena, sanitarios de primera marca,
amoblamientos de cocina con mesada, bajo mesada y alacenas de melamina, grifería monocomando de primera calidad,
lugar e instalación para lava ropa.
En los dormitorios frente de placares de melamina.

Mas detalles
  • Garage
  • En construcción
  • Balcon
  • Apto estudiantes
  • Apto profesional
  • Terraza
  • Cochera
  • Agua Corriente
  • Cloacas
  • Electricidad
  • Red Gas Natural
  • Planos aprobados
  • Entrada para Auto
  • Cocina Amueblada
  • Muros Perimetrales
  • Medidor Eléctrico Individual